已瀏覽人數:346人  收藏人數:0人  更新日期:2025-12-08 17:59:52
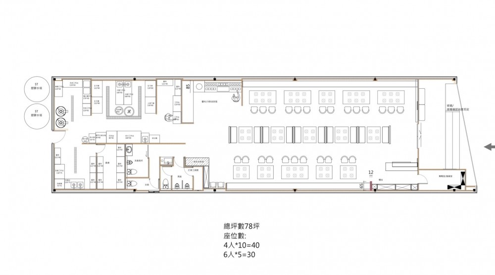
火鍋店配置佔地100坪(全新鐵皮屋),租期還有14年
 
 








 
 
店面狀況:
已完成
1.瓦斯管線已預埋完成,建物後方有整套瓦斯控制設備。
2.輕隔間已完成
3.水電工程已完成90%
4.化糞池已完成
5.輕鋼架天花板已完成
6.廁所管線已完成,男廁位置*1,小便斗位置*2,女廁位置*1,親子無障礙廁所*1

未完成
1.地磚鋪設
2.燈光安裝
3.廁所硬體安裝
4.招牌工程
5.油漆工程

設備,生財器具.....等等由買家自行採購。

租約還有14年,租金超級便宜!真的是買到撿到!


出讓原因:
工程進行到70%,因資金斷裂,無法繼續進行

附帶設備:
七套一對四全新冷氣機組
 
熱心回報:
店面已讓出回報
資訊錯誤回報
其他
 
為維護平台品質,如您發現此店面已讓出或資訊錯誤等等,歡迎向我們進行回報,客服人員將盡快處理回報案件喔!感謝您~
 
特惠頂讓金 420
(原頂讓金420 萬)
類別: 餐飲小吃
租金: 面議/月
押金: 二個月租金
坪數: 110 / 坪
建物: 地上:1F,地下:0F
所在: 1F
租店: 整租店面
設備: 含全部設備
位置: 屏東縣琉球鄉
編號: SA2025120821468
預約看店
服務狀態: 業主 - 不須服務費
聯 絡 人: 朱鴻翔
連絡電話: 08-
聯絡手機: 0918227227
店面備註:
喜歡店面可面議詳談
聯絡時間: 10:00~18:00
店主自售仲介勿擾!

 
         
頂讓類型 頂讓服務 店面區域搜尋 YES頂尖!創業網
2026店面頂讓展
餐飲小吃教育文具
服飾精品美容美髮
休閒育樂生活百貨
其他店家
店面刊登
買家需求詢問
成功讓出案例
頂讓百科
會員中心
北部
台北市新北市桃園市新竹市新竹縣基隆市
中部
台中市彰化縣雲林縣苗栗縣南投縣
南部
高雄市台南市嘉義市嘉義縣屏東縣
東部
宜蘭縣台東縣花蓮縣澎湖縣金門縣連江縣
YES頂尖!創業加盟網
YES頂尖!創業頂讓網
Yes頂尖!創業網 版權所有 © 2012 Yesone! Taiwan All Rights Reserved.   關於我們聯絡我們合作交流服務條款隱私權政策